Our intervention creates an “architecture cake foam topping” while enhancing the hotel’s unique charm.

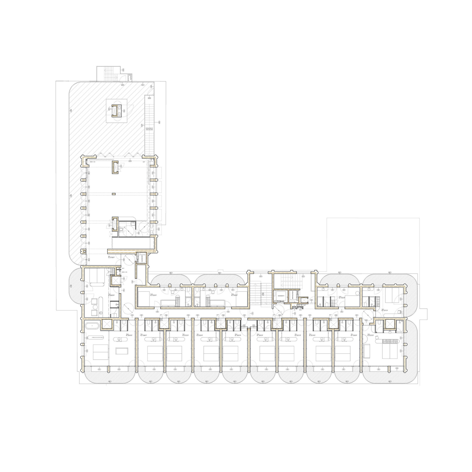
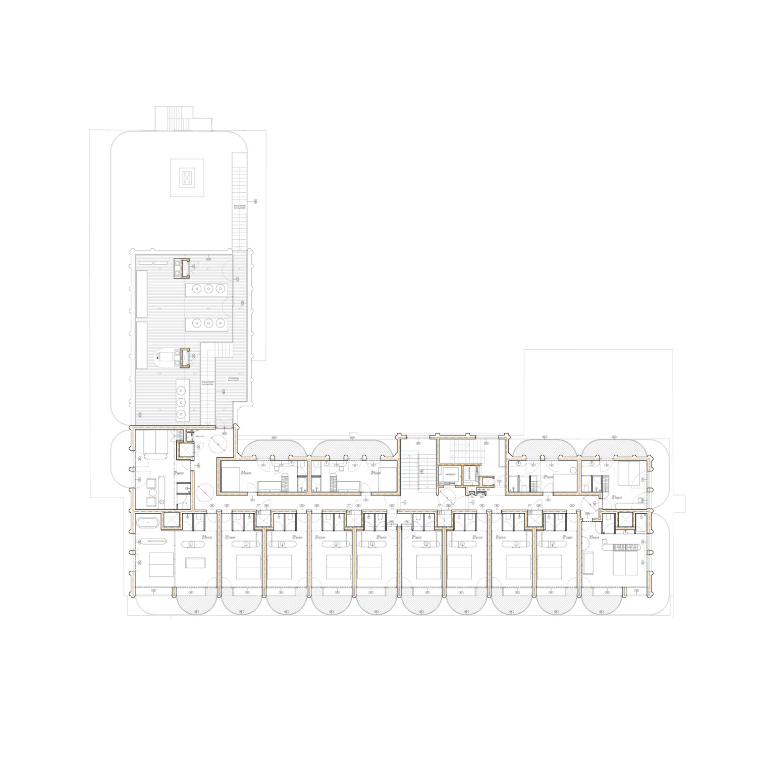
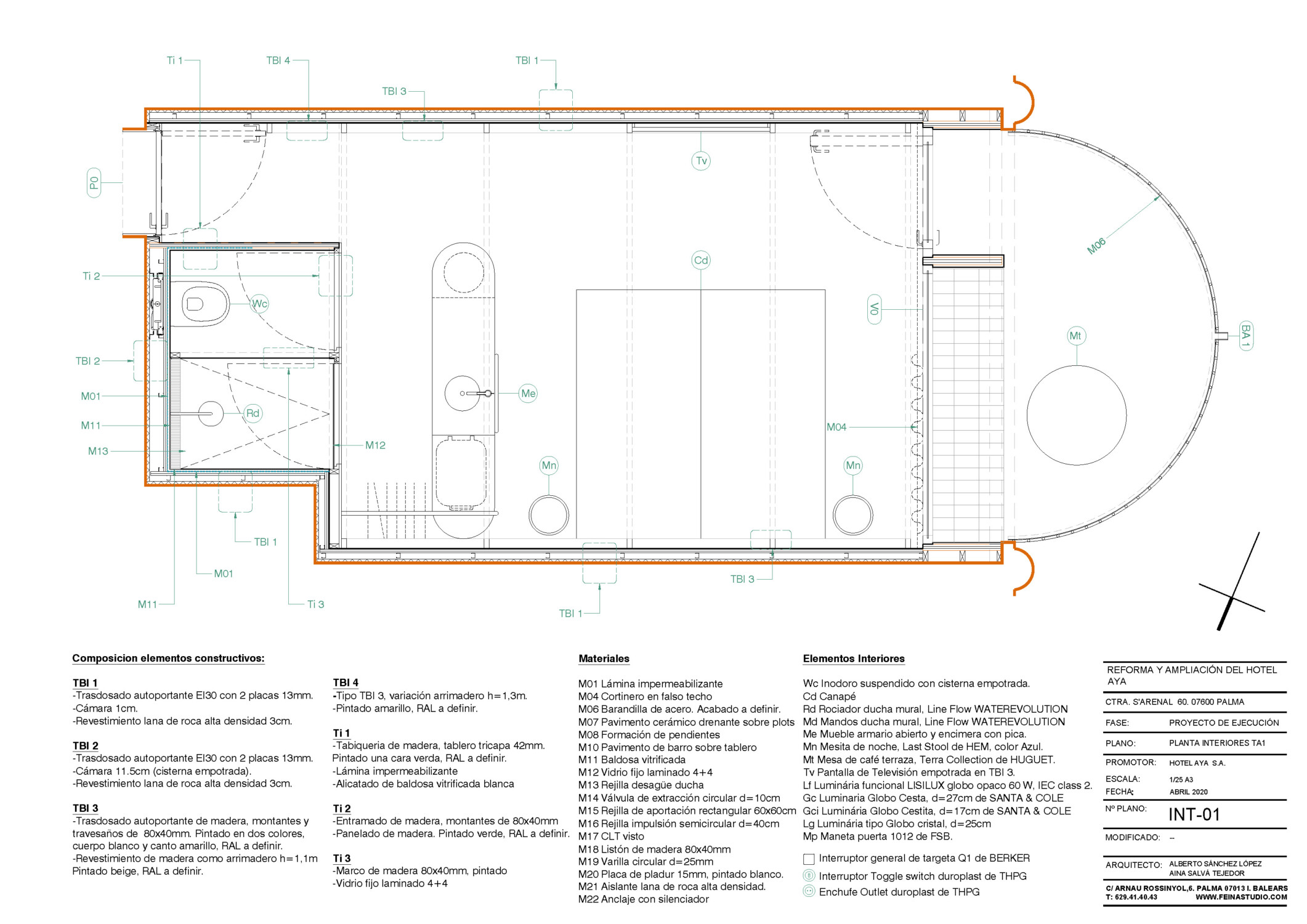
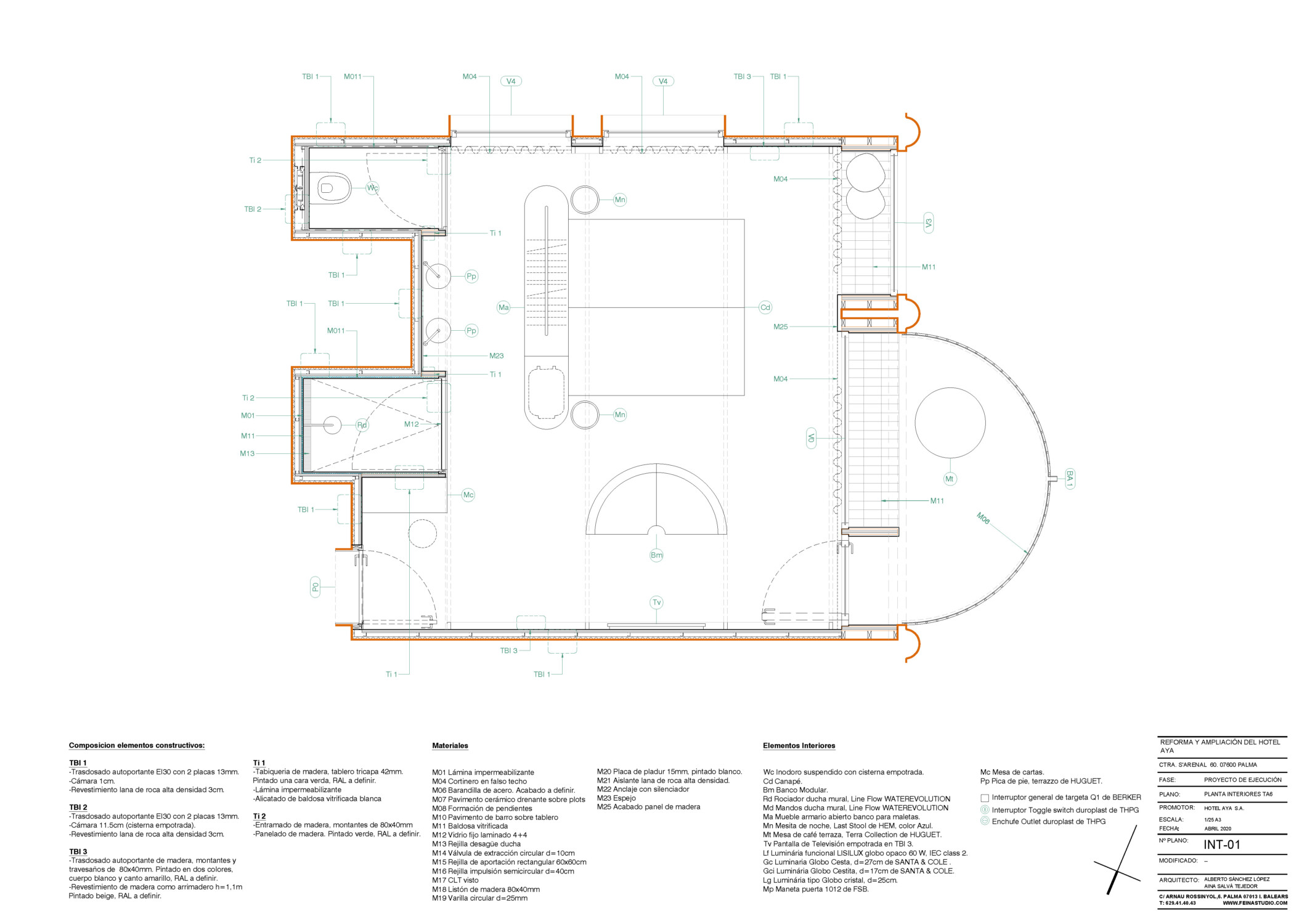
The extension of the Sea Hotel on the beach of Palma is set over the original hotel by the esteemed local architect Josep Ferragut. It involves the addition of two floors with a lightweight timber structure of CLT (Cross-Laminated Timber) for quick and precise construction. The new addition is compatible with the existing structure, yet distinct, evoking the glamour and optimistic holiday resort style of the 1960s. Our intervention creates an "architecture cake foam topping" while enhancing the hotel's unique charm. The new floors offer a panoramic roof terrace with views of the sea, creating a distinctive and optimistic experience for hotel guests.

Location: Palma
Client: Private
Size: 1200 m2
Year: 2019











